Este site utiliza cookies para permitir a mudança de língua e o armazenamento dos seus imóveis favoritos. Ao utilizar este site, concorda que o mesmo utilize cookies.

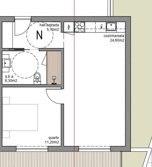
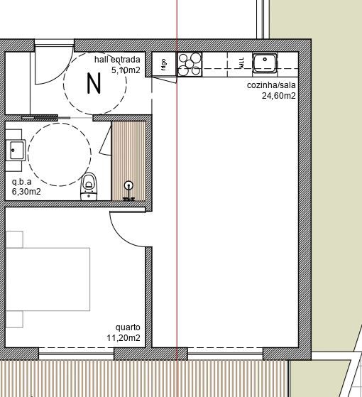
Apartamento T1, São João de Ver

220.000€




Referência

0822F- N

Natureza

Venda

Tipo de Imóvel

Apartamento

Tipologia

T1

Estado

Em Construção

Certificado energético

B

Ano

2028


Distrito

Aveiro

Concelho

Santa Maria da Feira

Freguesia

São João de Ver

Código Postal

4520


Área Útil

49.2 m2

Área Bruta

59.6 m2

Área de Terreno

0 m2



Contactar Imobiliária

*Preenchimento obrigatório
Ao clicar em 'Enviar', declara que aceita a nossa Política de Privacidade.

Simule o seu crédito habitação

20%
2.70%
Montante do empréstimo: 220,000 €
A sua prestação mensal: 821 €

Estes resultados são orientativos, calculados a partir dos números por si introduzidos.

Apartamento T1 com Varanda | Condomínio Fechado com Piscina | São João de Ver

Apresentamos este excelente apartamento T1, primeiro andar, situado em São João de Ver, no concelho de Santa Maria da Feira, ideal para habitação própria ou investimento seguro.

O imóvel dispõe de uma agradável varanda com 10,40 m², perfeita para criar uma zona de lazer ao ar livre.

Inserido em condomínio fechado, oferece um conjunto de comodidades que valorizam o dia a dia:

Piscina
Ginásio
Zonas ajardinadas
Lugar de garagem

A localização é um dos seus maiores trunfos: a apenas 500 metros do Lusopark, uma zona em forte expansão empresarial.

Nos próximos tempos, esta área será reforçada com a instalação de uma unidade da Lufthansa Technik, que criará cerca de 700 postos de trabalho, bem como da Louis Vuitton, o que potencia ainda mais a valorização do imóvel.

Localiza-se ainda a cerca de 2 km do centro da cidade, com rápidos acessos a comércio, serviços e principais vias rodoviárias, A1, A29, A32. 

Uma oportunidade sólida numa zona em crescimento — ideal para viver ou investir com visão.

Entre em contacto, IMO_FEIRA

Geral
CaixilhariaAluminio:Sim
CaixilhariaVidro Duplo:Sim
VistasJardins:Sim
Quarto de BanhoComum:Sim
Luz NaturalIluminado:Sim
Ar CondicionadoCompleto:Sim
GaragemLugar Interior:Sim
GeraisNº de Casas de Banho:1
CozinhaCerâmica:Sim
CozinhaPlaca:Sim
CozinhaForno:Sim
CozinhaExaustor:Sim
CozinhaMicro-ondas:Sim
CozinhaFrigorífico:Sim
CozinhaMáquina de lavar loiça:Sim
Edificio
GeraisNº de Frentes :2
GeraisNº de Lugares de Estacionamento:1
GeraisNº de Piscinas:1
GeraisPermite animais:Sim
GeraisAcesso mobilidade reduzida:Sim
ElevadorNº de Elevadores:1
Tipo de EmpreendimentoHabitação:Sim
IsolamentoTérmico:Sim
Revestimento ExteriorPintado:Sim
Revestimento ExteriorCapoto:Sim
ÁguaCompanhia:Sim
GaragemPortão automático:Sim
GaragemElectricidade:Sim

Este imóvel não tem áreas definidas.

Imóveis
Semelhantes

Apartamento
Venda
VENDIDO

Preço sob consulta

Luxuoso Apartamento Passionistas , Santa Mari...

Preço sob consulta

Aveiro / Santa Maria da Feira / Santa Maria da Feira, Travanca, Sanfins e Espargo


Ref: 0784F

Ref: 0784F

135.2 m2

3

3

Sim

Apartamento
Venda

180.000€

T0 | PISCINA | CONDOMINIO FECHADO | SÃO JOÃO...

180.000€

Aveiro / Santa Maria da Feira / São João de Ver


Ref: 0822F- T

Ref: 0822F- T

39.3 m2

1

Sim

Apartamento
Venda
VENDIDO

Preço sob consulta

Apartamento T2, Santa Maria da Feira

Preço sob consulta

Aveiro / Santa Maria da Feira / Nogueira da Regedoura


Ref: 0764FF

Ref: 0764FF

102 m2

2

1

A “Estrutura Mestre” é uma marca titulada pela Estrutura Mestre Lda, com sede em Avenida Francisco Sá Carneiro, 67, Intermediário de Crédito Vinculado, com o registo nº. 0008577, autorizado pelo Banco de Portugal para a prestação de serviços de consultoria e autorizado para a prestação de serviços de intermediação de crédito (Intermediação de Crédito Habitação). Contratos de crédito abrangidos: Crédito à Habitação e Crédito aos Consumidores. BANCO BPI S.A.: Santander- Caixa Geral Depósitos - Bankinter - Avanca - BPI, informação verificável em https://www.bportugal.pt/intermediariocreditofar/estrutura-mestra-lda.